top of page

![]() | ![]() |
|---|---|
![]() | ![]() |
![]() | ![]() |
![]() | ![]() |
![]() | ![]() |
![]() | ![]() |
![]() | ![]() |
![]() |
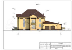
Двухэтажный загородный дом с цокольным этажом и мансардой. Расположенный в г. Новосибирске. Общая площадь дома 700 м/кв.
Полезная площадь 680 м/кв.
Площадь застройки 380 м/кв.
Фундамент - ж/б фбс .
Стены цокольного этажа - монолитный ж/б 600 мм.
Наружные несущие стены выполнены их кирпича толщиной 640 мм. В качестве утеплителя наружных стен, применена минераловатная плита 100 мм.
Наружная облицовка - облицовочный кирпич.
Внутренние несущие стены - кирпич 380 мм.
Перегородки - кирпич 120 мм.
Межэтажное перекрытия - многопустотные ж/п
Кровля - деревянная тёплая.
Коттедж в г. Новосибирске
bottom of page














